0 Rooms
0 Bedrooms
0 Bathrooms
0 Garages

Property Description

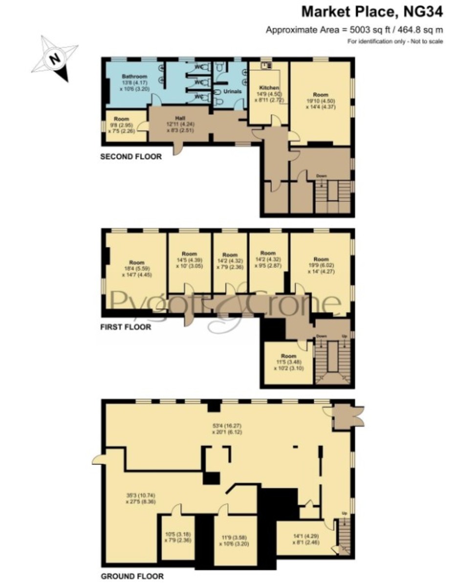
THE PROPERTY **Rare opportunity** Landmark listed freehold property offering 5003 sq ft over three floors, offering scope for re-development/investment. Vacant possession. HUGE POTENTIAL – NEW ROOF – ONE OFF OPPORTUNITY – FORMER BACLAYS BANK.

Huge scope to split the ground floor into smaller retail/office units with apartments over – subject to the necessary consents.

Grade 2 listed bank (listed class E)
CEPC (D)
Freehold

Recently had a new roof at considerable expense to the vendors. (see below)

The work undertaken at Market Place was:

– Strip out old roof and dispose
– Supply and install new roofing felt
– Supply and install new batons
– Supply and install new slates
– Supply and install loft insulation to replace the insulation removed by Rentokil
– Supply and install new guttering
– Supply and install new downpipe, unblocking and restoring the connection to the internal downpipe
– Localised external decoration to cover the rust stains from the downpipe

LOCATION The property is located in the town centre of Sleaford, at the junction of Market Place, North Gate and South Gate.

It accommodates a three storey Grade II Listed Bank (Use Class E). The site faces Market Place to the north, South Gate to the west and adjoins other buildings to the east and south.

Sleaford is an established Market Town in the middle of the County of Lincolnshire being approximately 17 miles South of the City of Lincoln and where the A15 bypasses the Town providing valuable communication links via the road network to both the A1 at Newark, which is approximately 22 miles away, and towards Boston and the East Coast.

Sleaford has a resident population of approximately 14,500 people and has an established and expanding catchment area.

ACCOMMODATION Arranged over three floors, being a former bank the property has useful large bank safes, currently arranged as banking hall on the ground floor, with attractive offices and staff welfare rooms on the first and second floors.

Offering an attractive outlook over the town through the period sash windows.

AMENITIES Currently set out as a banking hall with associated offices etc

SERVICES All main services connected.

TERMS Freehold property.

North Kesteven District Council North Kesteven District Council

VAT The sale is exclusive of VAT if applicable.

LEGAL COSTS Each party responsible for their own legal costs.

VIEWING Strictly via the agents James & Co 01371 876678